Public housing 12 units condo building
Mequinensa, Spain
N.E.:4008
Surface: 350 m2 (3760 ft2)
Budget: 2,32 M Euros
Client: ALNIMAR SA
Com. date: 2009
Tasks developed:
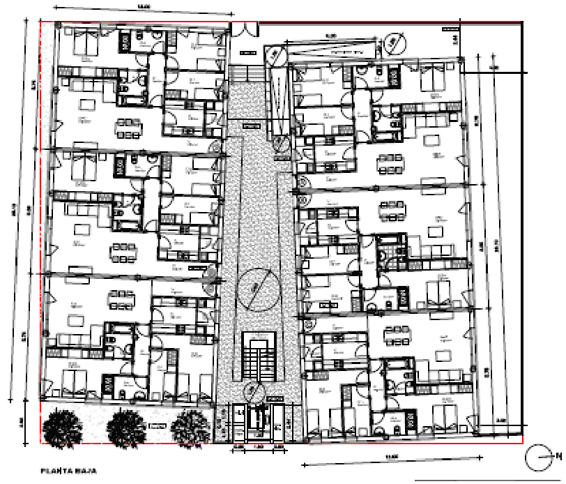
· Building design project and detailed design execution project The proposal contends 12 housing units, 12 parking spaces and 12 storage units. The housing units are distributed among two interconnected buildings of about the same size, roughly 39’x85’ floor space each. Each of them hosts 6 units, three on the ground floor and three on the first floor. The area for parking and storage units is located on the basement and it is common to both buildings. The two blocks are also linked by a staircase and elevator block that connects all floors including the basement, and cantilevered balconies that provide access to the apartments. The vertical communication block and the in between space is open and it is covered with a light and transparent roof.