Team



                  

 

 



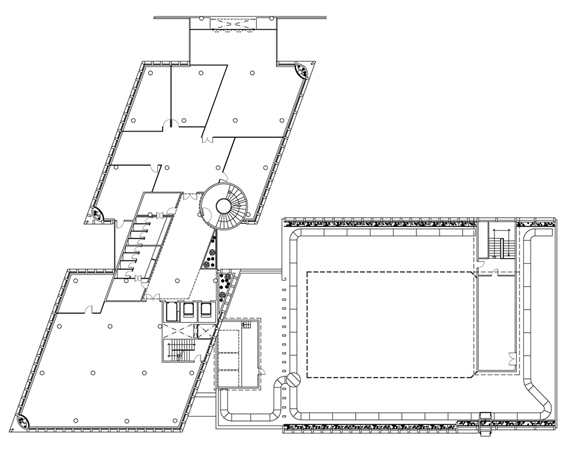
Rehabilitation studies Marquès Sentmenat 28


Barcelona
N.E.: 9771

 

Surface:              12.000 m2           
Budget:               50.000 Euros
Client:                 RENTA ANTIGUA INTERNACIONAL
Com. date:          2002


Tasks developed:

• Preliminary project and feasibility studies

Alternatives and feasibility studies for the refurbishment of the existing building located in Marqués de Sentmenat street, numbers 28-36, Barcelona.